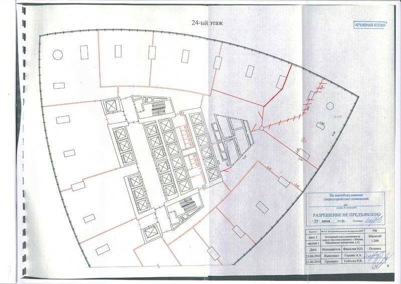
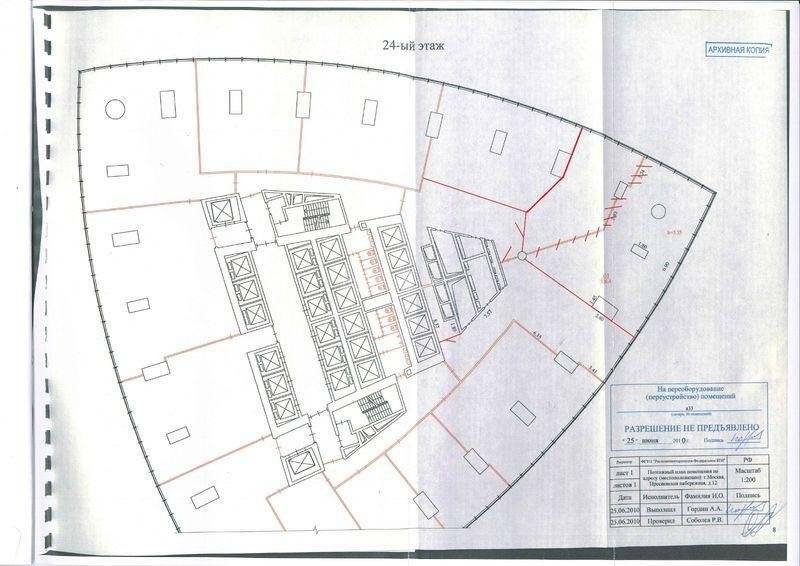
Нежилое помещение - 326,4 кв. м., 24 эта...

№ 410187Размещено: 03.11.23 11:42
г. Севастополь
Описание
Нежилое помещение - 326,4 кв. м., 24 этаж, кадастровый номер 77:01:0004034:3131

Адрес: Москва, вн. тер. г. муниципальный округ Пресненский, Пресненская наб., д. 12, помещение 3/24
Обременение: Аренда ООО «Управление гостиничным хозяйством», договор №2019-6549/90 от 17.12.2019, арендатором произведена несогласованная перепланировка помещений: снесены стены, отделяющие Помещение Банка от прилегающего помещения, находящегося в собственности третьего лица; произведён перенос сетей электроснабжения, освещения, а также изменено устройство системы пожаротушения и пожарной сигнализации; с арендатором ведутся судебные процессы: по делу А40-72171/23 о расторжении договора аренды и взыскании задолженности по арендным платежам; по делу А40-221559/2023 о побуждении арендатора привести помещение в техническое состояние и вид, соответствующий техническому паспорту
Текущая цена:
89 340 552 ₽
- 33%

Похожие лоты

г. Москва
1/51
+ 45 фото
Публичное предложение
111 255 203 ₽
- 60%
Лот №2 : Нежилое здание, этажность 6, общей площадью 6482,60...
Торги до: 03.09.24 23:59
Позвонить
г. Москва
1/100
+ 94 фото
Публичное предложение
257 780 432 ₽
Нежилые помещения (этаж 1, 2, 3, 4) - 5 702,4 кв. м, кн 77:0...
Торги до: 24.08.24 14:00
Позвонить
г. Москва
1/57
+ 51 фото
Публичное предложение
225 948 871 ₽
- 60%
Лот №1: Имущество, находящееся в залоге у ПАО «Промсвязьбанк...
Торги до: 20.08.24 15:00
Позвонить
Самарская область
1/59
+ 53 фото
Публичное предложение
27 810 000 ₽
- 90%
Лот 1: Автосервис (автоцентр) по продаже и обслуживанию авто...
Торги до: 06.07.24 08:00
Позвонить